Mietobjekte
Neubau eines modernen 4 Parteienhauses! Sonnige 3 Zi.-Whg. mit großem Südbalkon! ...
| Nutzungsart | Wohnen | Vermarktungsart | Miete |
| Objektart | Wohnung | Objekttyp | Etagenwohnung |
| PLZ | 85622 | Ort | Feldkirchen |
| Land | Deutschland | Etage | 1 |
| Baujahr | 2012 | Zustand | Erstbezug |
| Wohnfläche | 81 m² | Nutzfläche | 19 m² |
| Anzahl Zimmer | 3 | Anzahl Schlafzimmer | 2 |
| Anzahl Badezimmer | 1 | Anzahl Balkon/Terrassen | 1 |
| Balkon/Terrasse Fläche | 14 m² | Befeuerung | Erdwärme |
| Heizungsart | Zentralheizung | Fahrstuhl | Kein Fahrstuhl |
| Stellplatzart | Stellplatz im Freien | Etagenzahl | 1 |
| verfügbar ab (Datum) | 16.01.2026 | Nebenkosten | 150 € |
| Währung | € | Kaution | 2.670 € |
| Stellplatzanzahl | 1 | externe Objnr | GL593 |
| Status | Aktiv | Betreuer | 2 |
Objektbeschreibung: Hier sind Kinder herzlich willkommen! Bezugsfertig zum 1.September 2012!
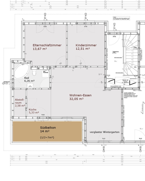
Die hier angebotene 3 Zimmer Neubauwohnung befindet sich im ersten Stock eines 4-Parteienhauses. Es besteht ausschließlich aus EG+1.OG.
Das Wohnhaus wird in Fertigteilbauweise aus Holzständerwerk mit einem Spitzdach gebaut und bietet neuesten Standard in Energieeffizienz. www.hartlhaus.at
Die Fenster sind 3-fach Isolierverglast und es wird mit Geothermie beheizt.
Jedem Mieter wird ein geräumiges Kellerabteil zugeordnet von ca. 10-15 m² sowie im Waschraum ein eigener Stellplatz für die Waschmaschine und den Trockner.
Ein Gemeinschaftsgarten mit Kinderspielplatz wird bei diesem familienfreundlichen Wohnhaus angelegt. Lage: Die Gemeinde Feldkirchen ist im Osten von München gelegen. Hier wohnt man in ländlich-idyllischer Umgebung, hat aber dennoch nur 19 min. (S-Bahn) bis zum Münchner Marienplatz und befindet sich in direkter Nachbarschaft zum neuen Messegelände München-Riem mit dem BUGA-Erholungspark. Die Anbindung an die öffentlichen Verkehrsmittel durch die S-Bahn-Station (S2) gegeben. Von hier aus ist der Ostbahnhof in nur ca. 11 min. Fahrzeit erreichbar. Einkaufsmöglichkeiten sind in der unmittelbaren Umgebung vorhanden. Auch die benachbarten "Riem-Arcaden" sind in nur wenigen Minuten Fahrzeit zu erreichen. Ein Kindergarten sowie eine Grundschule und die Realschule erhöhen die Attraktivität der Umgebung auch für Familien. Ausstattung: Bereits beim Betreten dieser Wohnung wird man sofort von dem großzügigen und lichtdurchfluteten Grundriss beeindruckt.
Das Wohn-Esszimmer ist offen gehalten und durch die bodentiefe Fensterfront mit Wintergarten und Austritt auf den Südbalkon, gelangt sehr viel Licht in diese Wohnung. Die Küche ist im Wohn-Essraum integriert muss aber vom Mieter selbst und auf seine Kosten eingebaut werden. Alle Vorrichtungen und Anschlüsse sind gegeben.
Der Südbalkon mit 14 m² Fläche bekommt ein modernes Stahlgeländer und auf dem Boden werden Holzpanelen verlegt.
Wohn-Esszimmer sowie die beiden Schlafzimmer bekommen einen hellgrauen Laminatboden.
Bei allen Fenstern (außer im Badezimmer) sind Jalousien, die manuell bedient werden, angebracht.
Das Badezimmer wird in grau halbhoch (ca.1,60 m) gefliest und mit einer Eckbadewanne, einem Waschbecken sowie einer Toilette (alles Markenprodukte) ausgestattet. Die Sanitäreinrichtungen werden alle in Weiß gehalten und bekommen verchromten Armaturen. Sonstige Angaben: Alle Angaben sind ohne Gewähr und basieren ausschließlich auf Informationen, die uns vom Auftraggeber zur Verfügung gestellt wurden. Wir übernehmen keine Gewähr für die Vollständigkeit, Richtigkeit und Aktualität dieser Angaben. Die Provision in Höhe von 2 Monatsmieten (kalt) zzgl. 19% Mehrwertsteuer ist mit dem Zustandekommen des Mietvertrages verdient und fällig. Irrtum und Zwischenvermietung vorbehalten.
Die hier angebotene 3 Zimmer Neubauwohnung befindet sich im ersten Stock eines 4-Parteienhauses. Es besteht ausschließlich aus EG+1.OG.
Das Wohnhaus wird in Fertigteilbauweise aus Holzständerwerk mit einem Spitzdach gebaut und bietet neuesten Standard in Energieeffizienz. www.hartlhaus.at
Die Fenster sind 3-fach Isolierverglast und es wird mit Geothermie beheizt.
Jedem Mieter wird ein geräumiges Kellerabteil zugeordnet von ca. 10-15 m² sowie im Waschraum ein eigener Stellplatz für die Waschmaschine und den Trockner.
Ein Gemeinschaftsgarten mit Kinderspielplatz wird bei diesem familienfreundlichen Wohnhaus angelegt. Lage: Die Gemeinde Feldkirchen ist im Osten von München gelegen. Hier wohnt man in ländlich-idyllischer Umgebung, hat aber dennoch nur 19 min. (S-Bahn) bis zum Münchner Marienplatz und befindet sich in direkter Nachbarschaft zum neuen Messegelände München-Riem mit dem BUGA-Erholungspark. Die Anbindung an die öffentlichen Verkehrsmittel durch die S-Bahn-Station (S2) gegeben. Von hier aus ist der Ostbahnhof in nur ca. 11 min. Fahrzeit erreichbar. Einkaufsmöglichkeiten sind in der unmittelbaren Umgebung vorhanden. Auch die benachbarten "Riem-Arcaden" sind in nur wenigen Minuten Fahrzeit zu erreichen. Ein Kindergarten sowie eine Grundschule und die Realschule erhöhen die Attraktivität der Umgebung auch für Familien. Ausstattung: Bereits beim Betreten dieser Wohnung wird man sofort von dem großzügigen und lichtdurchfluteten Grundriss beeindruckt.
Das Wohn-Esszimmer ist offen gehalten und durch die bodentiefe Fensterfront mit Wintergarten und Austritt auf den Südbalkon, gelangt sehr viel Licht in diese Wohnung. Die Küche ist im Wohn-Essraum integriert muss aber vom Mieter selbst und auf seine Kosten eingebaut werden. Alle Vorrichtungen und Anschlüsse sind gegeben.
Der Südbalkon mit 14 m² Fläche bekommt ein modernes Stahlgeländer und auf dem Boden werden Holzpanelen verlegt.
Wohn-Esszimmer sowie die beiden Schlafzimmer bekommen einen hellgrauen Laminatboden.
Bei allen Fenstern (außer im Badezimmer) sind Jalousien, die manuell bedient werden, angebracht.
Das Badezimmer wird in grau halbhoch (ca.1,60 m) gefliest und mit einer Eckbadewanne, einem Waschbecken sowie einer Toilette (alles Markenprodukte) ausgestattet. Die Sanitäreinrichtungen werden alle in Weiß gehalten und bekommen verchromten Armaturen. Sonstige Angaben: Alle Angaben sind ohne Gewähr und basieren ausschließlich auf Informationen, die uns vom Auftraggeber zur Verfügung gestellt wurden. Wir übernehmen keine Gewähr für die Vollständigkeit, Richtigkeit und Aktualität dieser Angaben. Die Provision in Höhe von 2 Monatsmieten (kalt) zzgl. 19% Mehrwertsteuer ist mit dem Zustandekommen des Mietvertrages verdient und fällig. Irrtum und Zwischenvermietung vorbehalten.
Ihr direkter Ansprechpartner
Name und Anschrift
Frau Nicole Rienas
Rienas-Immobilien
81669 München
Kontaktdaten
Tel.: 089 - 622 864 96
Mobil: 0172 - 813 25 90
Fax: 089 - 622 864 95
Email: nr@rienas-immobilien.de
Homepage: www.rienas-immobilien.de









