Mietobjekte
Traumhaft schöne Wohnung in kleiner Wohnanlage- 2 Balkone+Terrassen+kleiner Gart ...
| Nutzungsart | Wohnen | Vermarktungsart | Miete |
| Objektart | Wohnung | Objekttyp | Etagenwohnung |
| PLZ | 81927 | Ort | München |
| Land | Deutschland | Etage | 1 |
| Baujahr | 1995 | Zustand | Gepflegt |
| Baujahr lt. Energieausweis | 1995 | wesentlicher Energieträger | Gas |
| Wohnfläche | 66 m² | Nutzfläche | 24 m² |
| Anzahl Zimmer | 2 | Anzahl Schlafzimmer | 1 |
| Anzahl Balkon/Terrassen | 2 | Befeuerung | Gas |
| Heizungsart | Fußbodenheizung | Fahrstuhl | Kein Fahrstuhl |
| Stellplatzart | Duplex | Etagenzahl | 1 |
| verfügbar bis (Datum) | 01.03.2025 | Haustiere | nach Vereinbarung |
| Währung | € | Stellplatzanzahl | 1 |
| externe Objnr | GW502 | Status | Aktiv |
| Betreuer | 2 |
Objektbeschreibung: Terrasse + 2 Balkone + Garten!
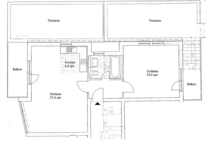
Die helle und sehr gut geschnittene Wohnung befindet sich im 1. OG und verfügt über 1 Terrasse und 2 Balkone. Über eine Treppe gelangt man in seinen eigenen Gartenanteil mit schönem Baumbestand. Durch die vielen verschiedenen Freiflächen hat der Mieter alle Möglichkeiten, sich frei zu entfalten. Die gepflegte Wohnanlage aus dem Baujahr 1995 verfügt über 9 Wohneinheiten.
Vom Flur aus gelangt man entweder auf der einen Seite zum grosszügig geschnittenen Wohnraum mit offener Einbauküche sowie auf den ersten Balkon.
Vom Schlafzimmer aus geht ein weiterer Balkon zu einer Terrasse. Über diese Terrasse gelangt man in seinen eigenen kleinen Gartenanteil der zum verweilen einlädt. Sonstige Angaben: Zur Wohnung gehört ein Kellerabteil. Zudem hat der Mieter die Möglichkeit seine Waschmaschine sowie seinen Trockner in der Waschküche aufzustellen. Hierzu gibt es einen eigenen Stellplatz!
Ein Duplex Stellplatz oben für 80 Euro monatlich sollte zur Wohnung mit angemietet werden.
Alle Angaben sind ohne Gewähr und basieren ausschließlich auf Informationen, die uns vom Auftraggeber zur Verfügung gestellt wurden. Wir übernehmen keine Gewähr für die Vollständigkeit, Richtigkeit und Aktualität dieser Angaben.
Die helle und sehr gut geschnittene Wohnung befindet sich im 1. OG und verfügt über 1 Terrasse und 2 Balkone. Über eine Treppe gelangt man in seinen eigenen Gartenanteil mit schönem Baumbestand. Durch die vielen verschiedenen Freiflächen hat der Mieter alle Möglichkeiten, sich frei zu entfalten. Die gepflegte Wohnanlage aus dem Baujahr 1995 verfügt über 9 Wohneinheiten.
Energieausweis
Art: Verbrauchsausweis
Endenergieverbrauch: 123.50 kWh/(m²*a)
Baujahr lt. Energieausweis: 1995
Wesentlicher Energieträger: Gas
Vom Flur aus gelangt man entweder auf der einen Seite zum grosszügig geschnittenen Wohnraum mit offener Einbauküche sowie auf den ersten Balkon.
Vom Schlafzimmer aus geht ein weiterer Balkon zu einer Terrasse. Über diese Terrasse gelangt man in seinen eigenen kleinen Gartenanteil der zum verweilen einlädt. Sonstige Angaben: Zur Wohnung gehört ein Kellerabteil. Zudem hat der Mieter die Möglichkeit seine Waschmaschine sowie seinen Trockner in der Waschküche aufzustellen. Hierzu gibt es einen eigenen Stellplatz!
Ein Duplex Stellplatz oben für 80 Euro monatlich sollte zur Wohnung mit angemietet werden.
Alle Angaben sind ohne Gewähr und basieren ausschließlich auf Informationen, die uns vom Auftraggeber zur Verfügung gestellt wurden. Wir übernehmen keine Gewähr für die Vollständigkeit, Richtigkeit und Aktualität dieser Angaben.
Ihr direkter Ansprechpartner
Name und Anschrift
Frau Nicole Rienas
Rienas-Immobilien
81669 München
Kontaktdaten
Tel.: 089 - 622 864 96
Mobil: 0172 - 813 25 90
Fax: 089 - 622 864 95
Email: nr@rienas-immobilien.de
Homepage: www.rienas-immobilien.de













