Mietobjekte
GIS 8
| Nutzungsart | Gewerbe | Vermarktungsart | Miete |
| Objektart | Gastgewerbe | Objekttyp | Restaurant |
| PLZ | 80802 | Ort | München |
| Land | Deutschland | wesentlicher Energieträger | Fernwärme |
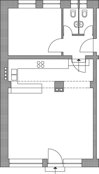
| Gesamtfläche | 67 m² | Boden | Fliesen |
| Fahrstuhl | Personenaufzug | Außen-Provision | 2 KM |
| Währung | € | externe Objnr | YU159 |
| Status | Aktiv | Betreuer | 2 |
Objektbeschreibung: Einzigartige Gelegenheit zur Übernahme eines
sehr gut etablierten Restaurants (seit 13 Jahren) in Best Lage von Schwabing / Univiertel!
Der Kundenstamm umfasst ein breites Stammpublikum. Zudem besteht eine hohe Nachfrage nach Firmenveranstaltungen und geschlossenen Gesellschaften.
Durch die unmittelbare nähe zu Großfirmen, sowie die Vermarktung über einen professionellen Internetauftritt bringen diesem Restaurant zahlreiche zufriedene Kunden.
Das Mittagsgeschäft sowie auch Abendgeschäft ist sehr gut etabliert. Der neue Mieter könnte noch Catering sowie ein Take-away Geschäft mit anbieten. Sonstige Angaben: Dieses Restaurant wird ausschließlich mit Inventar und Technik abgegeben.
Die Ablöse beläuft sich auf VHB 40.000,- Euro.
Inventarliste vorhanden!
Frei nach Vereinbarung!
Alle Angaben sind ohne Gewähr und basieren ausschließlich auf Informationen, die uns vom Auftraggeber zur Verfügung gestellt wurden. Wir übernehmen keine Gewähr für die Vollständigkeit, Richtigkeit und Aktualität dieser Angaben. Die Provision in Höhe von 2 Monatsmieten (kalt) zzgl. 19% Mehrwertsteuer ist mit dem Zustandekommen des Mietvertrages verdient und fällig. Irrtum und Zwischenvermietung vorbehalten.
sehr gut etablierten Restaurants (seit 13 Jahren) in Best Lage von Schwabing / Univiertel!
Energieausweis
Wesentlicher Energieträger: Fernwärme
Der Kundenstamm umfasst ein breites Stammpublikum. Zudem besteht eine hohe Nachfrage nach Firmenveranstaltungen und geschlossenen Gesellschaften.
Durch die unmittelbare nähe zu Großfirmen, sowie die Vermarktung über einen professionellen Internetauftritt bringen diesem Restaurant zahlreiche zufriedene Kunden.
Das Mittagsgeschäft sowie auch Abendgeschäft ist sehr gut etabliert. Der neue Mieter könnte noch Catering sowie ein Take-away Geschäft mit anbieten. Sonstige Angaben: Dieses Restaurant wird ausschließlich mit Inventar und Technik abgegeben.
Die Ablöse beläuft sich auf VHB 40.000,- Euro.
Inventarliste vorhanden!
Frei nach Vereinbarung!
Alle Angaben sind ohne Gewähr und basieren ausschließlich auf Informationen, die uns vom Auftraggeber zur Verfügung gestellt wurden. Wir übernehmen keine Gewähr für die Vollständigkeit, Richtigkeit und Aktualität dieser Angaben. Die Provision in Höhe von 2 Monatsmieten (kalt) zzgl. 19% Mehrwertsteuer ist mit dem Zustandekommen des Mietvertrages verdient und fällig. Irrtum und Zwischenvermietung vorbehalten.
Ihr direkter Ansprechpartner
Name und Anschrift
Frau Nicole Rienas
Rienas-Immobilien
81669 München
Kontaktdaten
Tel.: 089 - 622 864 96
Mobil: 0172 - 813 25 90
Fax: 089 - 622 864 95
Email: nr@rienas-immobilien.de
Homepage: www.rienas-immobilien.de














