Mietobjekte
Helle Singleoase mit Balkon in Sendling
| Nutzungsart | Wohnen | Vermarktungsart | Miete |
| Objektart | Wohnung | Objekttyp | Etagenwohnung |
| PLZ | 81369 | Ort | München |
| Land | Deutschland | Etage | 3 |
| Regionaler Zusatz | München Süd | Zustand | Gepflegt |
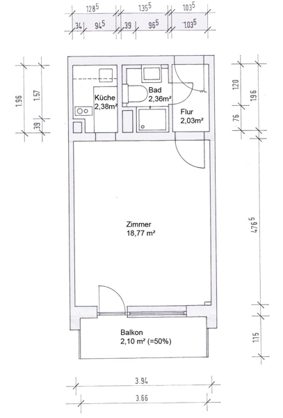
| Wohnfläche | 28 m² | Nutzfläche | 5 m² |
| Anzahl Zimmer | 1 | Anzahl Badezimmer | 1 |
| Anzahl Balkon/Terrassen | 1 | Heizungsart | Zentralheizung |
| Fahrstuhl | Kein Fahrstuhl | Etagenzahl | 3 |
| verfügbar ab (Datum) | 16.04.2026 | Haustiere | Nein |
| Nebenkosten | 100 € | Währung | € |
| Kaution | 1.200 € | externe Objnr | TS485 |
| Status | Aktiv | Betreuer | 2 |
Objektbeschreibung: Diese kleine Singleoase befindet sich in der 3.Etage ohne Aufzug.
Insgesamt besteht dieses Wohnhaus aus 30 Parteien. Zur Wohnung gehört ein Kellerabteil.
Ein Wasch.- und Trockenraum stehen dem Mieter zur Verfügung. Lage: Dieses Apartment liegt mitten im Herzen des beliebten Stadtteils Mittersendling.
Ob Supermärkte, Bäckereien, Metzger, Apotheke, Drogeriemarkt, Schreibwarengeschäft, Blumenladen, Reinigung, Restaurants und Banken, Schulen, Kindergarten und Ärzte, alles befindet sich in unmittelbarer Nähe!
Die nächste U-Bahn Station sowie der wunderschöne Westpark, die Isarauen, die Anbindungen an jegliche Autobahnen (über den Mittleren Ring) sind in kürzester Zeit zu erreichen. Ausstattung: Dieses Apartment ist in einem gepflegten Zustand. Zimmer, Flur und Küche haben einen Laminatboden. Von diesem Zimmer aus gelangt mach auf den 4,1 m² großen Ostbalkon.
Die kleine separate Küche ist mit einem Herd mit 2 Kochplatten, einem Kühlschrank und Ober.-und Unterschränken ausgestattet
Das weiß geflieste Badezimmer ist ein Duschbad. Sonstige Angaben: Alle Angaben sind ohne Gewähr und basieren ausschließlich auf Informationen, die uns vom Auftraggeber zur Verfügung gestellt wurden. Wir übernehmen keine Gewähr für die Vollständigkeit, Richtigkeit und Aktualität dieser Angaben. Die Provision in Höhe von 2 Monatsmieten (kalt) zzgl. 19% Mehrwertsteuer ist mit dem Zustandekommen des Mietvertrages verdient und fällig. Irrtum und Zwischenvermietung vorbehalten.
Insgesamt besteht dieses Wohnhaus aus 30 Parteien. Zur Wohnung gehört ein Kellerabteil.
Ein Wasch.- und Trockenraum stehen dem Mieter zur Verfügung. Lage: Dieses Apartment liegt mitten im Herzen des beliebten Stadtteils Mittersendling.
Ob Supermärkte, Bäckereien, Metzger, Apotheke, Drogeriemarkt, Schreibwarengeschäft, Blumenladen, Reinigung, Restaurants und Banken, Schulen, Kindergarten und Ärzte, alles befindet sich in unmittelbarer Nähe!
Die nächste U-Bahn Station sowie der wunderschöne Westpark, die Isarauen, die Anbindungen an jegliche Autobahnen (über den Mittleren Ring) sind in kürzester Zeit zu erreichen. Ausstattung: Dieses Apartment ist in einem gepflegten Zustand. Zimmer, Flur und Küche haben einen Laminatboden. Von diesem Zimmer aus gelangt mach auf den 4,1 m² großen Ostbalkon.
Die kleine separate Küche ist mit einem Herd mit 2 Kochplatten, einem Kühlschrank und Ober.-und Unterschränken ausgestattet
Das weiß geflieste Badezimmer ist ein Duschbad. Sonstige Angaben: Alle Angaben sind ohne Gewähr und basieren ausschließlich auf Informationen, die uns vom Auftraggeber zur Verfügung gestellt wurden. Wir übernehmen keine Gewähr für die Vollständigkeit, Richtigkeit und Aktualität dieser Angaben. Die Provision in Höhe von 2 Monatsmieten (kalt) zzgl. 19% Mehrwertsteuer ist mit dem Zustandekommen des Mietvertrages verdient und fällig. Irrtum und Zwischenvermietung vorbehalten.
Ihr direkter Ansprechpartner
Name und Anschrift
Frau Nicole Rienas
Rienas-Immobilien
81669 München
Kontaktdaten
Tel.: 089 - 622 864 96
Mobil: 0172 - 813 25 90
Fax: 089 - 622 864 95
Email: nr@rienas-immobilien.de
Homepage: www.rienas-immobilien.de









